Česká Třebová/Praha — Rakouské spolkové dráhy (ÖBB) ve čtvrtek 21. února vyslaly do ČR soupravu netrakční jednotky Siemens Viaggio Comfort s lokomotivou řady 1216 nesoucí reklamu firmy Kapsch. Na trase Vídeň - Brno - Česká Třebová - Otrokovice - Vídeň railjet vykonal zkušební jízdu jak v taženém, tak sunutém režimu. Nejednalo se ale o první jízdu tohoto vlaku u nás - vlastní silou dojel v minulosti do Velimi, stejně jako do Ostravy na veletrh Czech Raildays. ČD chtěly test provést bez publicity, nicméně deník E15 prolomil ve středu embargo. Dráhy slibují veřejnosti prezentaci jednotky ÖBB v dubnu tohoto roku. Mezi tím se rýsují informace o nasazení souprav v ČR. Jako termín spuštění provoz Praha - Vídeň - Graz je určena polovina prosince 2014, nicméně první souprava je už nyní ve stádiu realizace. České dráhy a ÖBB se navíc dohodly na použití produktu railjet - do ČR podle všeho budou zajíždět také rakouské soupravy. České jednotky budou ale mít mírně odlišný interiér. Podle dostupných nákresů bude prémiová Business Class redukována na 6 míst v uspořádání 3 a 3 proti sobě. Naopak první třída bude mít v čelním voze kapacitu 32 míst.
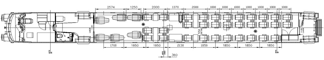
Viaggio Comfort pro vlaky railjet ČD: sedm vozů, tři třídy

Vůz 1 (řídicí, Business, 1. třída)

Vůz 2 (bistro, 1. třída)

Vozy 3-6 (2. třída)

Vůz 7 (2. třída, prostor pro zavazadla)
Zdroj: České dráhy, Železničář 24/2012
| 22.2.2013 (0:00)
Prostě nechal bych to tak, až jak se osvědčí, důležité je že při včasné rezervaci je dostatek jiných míst jedničky takže stačí si vybrat podle vlastních preferencí...
Chápu z toho schématu vozů správně, že 1. třída = oddíl pro specifické osoby (vozíčkáři, ale i jiní)?
Nic proti tomuto konceptu, sám jsem rád, když se bourají bariéry mezi zdravými a postiženými co nejvíc. Ale nevím, jestli by mě třeba představa cesty 300km v jednom malém propojeném oddíle třeba s cestujícím na vozíku s vážnými nervovými poruchami, který nekontrolovaně vydává skřeky každé 3 minuty (ano, jsou i takoví) opravdu motivovala k tomu, připlácet si za komfortní a klidnou 1. třídu. Asi bych si 1.třídu po takovéhle zkušenosti nekoupil podruhé, protože to už můžu jet s ostatními dvojkou a výsledný dojem bude přinejmenším stejný.
Ono se snad ani pořádně neví, jestli vůbec budou povinně místenkové - aspoň na území ČR.
Vlastně by mě zajímalo, jaký přesně je cílový stav interiéru railjetů ÖBB po té předělávce.
Za ještě nedávných časů (a mnoha tratích ČD/ŽSSK i dnes, ) byl rozdíl v 6 x 8 místech, látce x kožence. Ale u "moderních" vozů mi rozdíl v komfortu pro zadek uniká - zvlášť když na dvojku mám mnoho slevových možností, zatímco v jedničce je plný tarif 1,5 násobku plné dvojky.
Jednička má efekt na vlacích typu Thalys, Eurostar, kde dostanu najíst, průvodčí je nablízku atd, ale už třeba v TGV (taky povinně místenkový) mi nějak efekt uniká.
Komentáře vyjadřují názory čtenářů.
Redakce nenese žádnou zodpovědnost za jejich obsah.
- dopisovatel nebo člen ŽP,
- editor nebo admin ŽP
Před vložením komentáře je nutné se buď přihlásit, nebo zaregistrovat.










